Mehr anzeigen zum Thema Beschreibung
Beschreibung
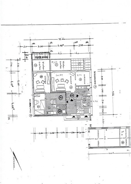
2021 wurde diese Wohnung vollständig saniert, einschließlich neuer Fenster und Fußböden. Erdgeschoss-Wohnung in einem 4-Parteien-Haus. Wohnfläche ca. 50 m², verteilt auf Wohnungsflur, Küche mit EBK, Wohnzimmer mit Zugang zum Wintergarten und zur Terrasse, Schlafzimmer, Tageslicht-Duschbad, Abstellraum, Garage, Glasfaser. In 2023 wurde die Gas-Zentralheizung ausgetauscht und eine Gebäudedämmung vorgenommen. Erbpacht, Restlaufzeit 37 Jahre. RENDITE: BITTE BEACHTEN SIE DEN PUNKT SONSTIGES
Mehr anzeigen zum Thema Ausstattung Beschreibung
Ausstattung Beschreibung
Dieses Haus wurde in massiver Bauweise errichtet und mit einem Pfannendach versehen. Die Wohnung ist zurzeit in der Ferienvermietung. Aufgrund der erstklassigen Lage, nur 250 Meter zum Deich, ist die Vermietung hervorragend. Die Wohnung eignet sich auch zur Selbstnutzung oder Dauervermietung.
Diese Wohnung wurde 2021 vollständig saniert, auch die Fenster wurden ausgetauscht. Die Böden sind mit Laminat und Fliesen ausgestattet. Der dem Wohnzimmer vorgelagerte Wintergarten bietet zusätzlich Platz und ermöglicht den Zugang zur Terrasse.
Die moderne Einbauküche besticht durch einen Herd mit vier Induktionskochfeldern, einem Kühlschrank mit Gefrierfach und einer Geschirrspülmaschine. Auch der Esstisch findet hier seinen Platz.
Die Wohnung wird möbliert und mit „Pütt und Pann“ verkauft. Die Ausstattung ist im Kaufpreis enthalten.
Glasfaser / Internetanschluss ist vorhanden. Das Gebäude wurde gedämmt. Eine Garage gehört zum Sondereigentum und ist im Kaufpreis enthalten.
Das Haus steht auf einem Erbpacht-Grundstück. Beachten Sie bitte hierzu den Punkt SONSTIGES.
Diese Wohnung wurde 2021 vollständig saniert, auch die Fenster wurden ausgetauscht. Die Böden sind mit Laminat und Fliesen ausgestattet. Der dem Wohnzimmer vorgelagerte Wintergarten bietet zusätzlich Platz und ermöglicht den Zugang zur Terrasse.
Die moderne Einbauküche besticht durch einen Herd mit vier Induktionskochfeldern, einem Kühlschrank mit Gefrierfach und einer Geschirrspülmaschine. Auch der Esstisch findet hier seinen Platz.
Die Wohnung wird möbliert und mit „Pütt und Pann“ verkauft. Die Ausstattung ist im Kaufpreis enthalten.
Glasfaser / Internetanschluss ist vorhanden. Das Gebäude wurde gedämmt. Eine Garage gehört zum Sondereigentum und ist im Kaufpreis enthalten.
Das Haus steht auf einem Erbpacht-Grundstück. Beachten Sie bitte hierzu den Punkt SONSTIGES.
Mehr anzeigen zum Thema Lage
Lage
Büsum, eine Gemeinde in Schleswig-Holstein, Kreis Dithmarschen, hat ca. 5100 Einwohner und gehört zum Amt Büsum-Wesselburen. Diese Lage gefällt. Nur 250 Meter bis zum Deich und zum Strand, präsentiert sich diese Immobilie inmitten von schmucken Häusern in niedriger Bauweise. Nicht nur den Strand, auch den Kurpark, Einkaufsmöglichkeiten, Restaurants und touristische Attraktionen kann man fußläufig erreichen.
Büsum (plattdeutsch Büsen) ist eine Gemeinde im Kreis Dithmarschen in Schleswig-Holstein. Der Hafenort liegt direkt an der Nordsee, ist seit dem 19. Jahrhundert Seebad und nach Übernachtungszahlen nach Sankt Peter-Ording und Westerland der drittgrößte Fremdenverkehrsort an der schleswig-holsteinischen Nordseeküste. Der Ort liegt an der Nordsee, an der Meldorfer Bucht, nahe der Eidermündung in der Dithmarscher Marsch, etwa 100 Kilometer nordwestlich von Hamburg. Der Hafen ist über den Meeresstrom Piep, der durch den Nationalpark Schleswig-Holsteinisches Wattenmeer verläuft, mit der offenen See verbunden. Gegen die Sturmflutgefahr ist der Büsumer Hafen durch ein Sperrwerk geschützt, das ab Wasserständen von einem Meter über NHN geschlossen wird.
Büsum (plattdeutsch Büsen) ist eine Gemeinde im Kreis Dithmarschen in Schleswig-Holstein. Der Hafenort liegt direkt an der Nordsee, ist seit dem 19. Jahrhundert Seebad und nach Übernachtungszahlen nach Sankt Peter-Ording und Westerland der drittgrößte Fremdenverkehrsort an der schleswig-holsteinischen Nordseeküste. Der Ort liegt an der Nordsee, an der Meldorfer Bucht, nahe der Eidermündung in der Dithmarscher Marsch, etwa 100 Kilometer nordwestlich von Hamburg. Der Hafen ist über den Meeresstrom Piep, der durch den Nationalpark Schleswig-Holsteinisches Wattenmeer verläuft, mit der offenen See verbunden. Gegen die Sturmflutgefahr ist der Büsumer Hafen durch ein Sperrwerk geschützt, das ab Wasserständen von einem Meter über NHN geschlossen wird.
Mehr anzeigen zum Thema Sonstige Angaben
Sonstige Angaben
Die Wohnung hat aufgrund ihrer Lage und hochwertigen Ausstattung eine erstklassige Vermietbarkeit und weist sehr gute Umsätze aus. Bei ernsthaftem Interesse übermitteln wir Ihnen gern die Zahlen.
Für 2026 bestehen schon zahlreiche Buchungen. Diese können übernommen werden. So ist ein nahtloser Übergang gewährleistet.
Das Erbbaurecht hat eine Laufzeit von 99 Jahre, beginnend am 01.11.1963. Restlaufzeit 37 Jahre.
Das Hausgeld inkl. Heizung, aller Betriebskosten, Gärtner, Verwaltung und Hausreinigung beträgt monatlich ca. 490,00 €. Hinzu kommen 47,00 € mtl. an Erhaltungsrücklage und 43,00 € monatlich für den Erbbauzins.
Die Beheizung und Brauchwasseraufbereitung erfolgen über eine neue Gaszentralheizung (2024).
Ein Energieausweis liegt vor und wird bei der Besichtigung ausgehändigt. Endenergiebedarf 144,0 kWh(m²+a), Energieklasse E, gültig bis 15.04.2034.
Die Immobilie kann sofort, oder nach Vereinbarung, übergeben werden.
Bitte haben Sie Verständnis dafür, dass wir nur bei Angabe Ihrer vollständigen Adresse mit Telefonnummer die Adressdaten der Immobilie per Mail übermitteln. Dies geschieht in Absprache mit den Verkäufern unserer angebotenen Immobilien und unterstreicht gleichzeitig die Ernsthaftigkeit Ihrer Anfrage. Mit Ihrer Anfrage erteilen Sie uns die Einwilligung, telefonisch oder per E-Mail kontaktiert zu werden.
Die Maklerprovision ist verdient und fällig mit Beurkundung des notariellen Kaufvertrages. Zu Zahlen vom Käufer.
Für 2026 bestehen schon zahlreiche Buchungen. Diese können übernommen werden. So ist ein nahtloser Übergang gewährleistet.
Das Erbbaurecht hat eine Laufzeit von 99 Jahre, beginnend am 01.11.1963. Restlaufzeit 37 Jahre.
Das Hausgeld inkl. Heizung, aller Betriebskosten, Gärtner, Verwaltung und Hausreinigung beträgt monatlich ca. 490,00 €. Hinzu kommen 47,00 € mtl. an Erhaltungsrücklage und 43,00 € monatlich für den Erbbauzins.
Die Beheizung und Brauchwasseraufbereitung erfolgen über eine neue Gaszentralheizung (2024).
Ein Energieausweis liegt vor und wird bei der Besichtigung ausgehändigt. Endenergiebedarf 144,0 kWh(m²+a), Energieklasse E, gültig bis 15.04.2034.
Die Immobilie kann sofort, oder nach Vereinbarung, übergeben werden.
Bitte haben Sie Verständnis dafür, dass wir nur bei Angabe Ihrer vollständigen Adresse mit Telefonnummer die Adressdaten der Immobilie per Mail übermitteln. Dies geschieht in Absprache mit den Verkäufern unserer angebotenen Immobilien und unterstreicht gleichzeitig die Ernsthaftigkeit Ihrer Anfrage. Mit Ihrer Anfrage erteilen Sie uns die Einwilligung, telefonisch oder per E-Mail kontaktiert zu werden.
Die Maklerprovision ist verdient und fällig mit Beurkundung des notariellen Kaufvertrages. Zu Zahlen vom Käufer.
Mehr anzeigen zum Thema Sonstige Angaben
Energieausweis
A+
< 30
A
30 – 50
B
50 – 75
C
75 – 100
D
100 – 130
E
130 – 160
F
160 – 200
G
200 – 250
H
> 250
- Nutzungsart
- Wohnen
- Baujahr lt. Energieausweis
- 1967
- Endenergiebedarf
- 144 kWh/(m²a)
- Energieausweis
- Bedarfsausweis
- Energieausweis gültig bis
- 15.04.2034
- Energieeffizienzklasse
- E
- wesentlicher Energieträger
- Gas