Mehr anzeigen zum Thema Beschreibung
Beschreibung
Großes EFH mit 2 abgeschlossenen Wohnungen. Dieses Haus mit zwei Vollgeschossen wurde 1898 erbaut und in den letzten Jahren vollständig saniert und hochwertig modernisiert. 238 m² Wohnfläche, verteilt auf 2 abgeschlossene Wohnungen (EG und OG / DG) über 2 Etagen und Dachgeschoss. Das EG ist barrierefrei. 9 Zimmer, 2 Einbauküchen, 3 Bäder, Gas-Zentralheizung mit Solarunterstützung, Fußbodenheizung (EG), Balkon, Loggia, Lager- und Abstellräume auf dem Grundstück, Gartenhaus als Werkstatt, eingefriedetes Grundstück mit Gartenteil, Zufahrt mit Rolltor (Fernbedienung) gesichert. Stellplätze auf dem Grundstück. Glasfaser.
Mehr anzeigen zum Thema Ausstattung Beschreibung
Ausstattung Beschreibung
Dieses Haus wurde in den letzten Jahren vollständig saniert und hochwertig modernisiert. Dabei wurde es in Zwei voneinander getrennte Wohneinheiten aufgeteilt, wobei das EG barrierefrei gestaltet wurde.
Die letzte Sanierung / Modernisierung war 2025.
– Die gesamte Elektrik wurde erneuert.
– Alle Wasserleitungen wurden erneuert.
– Alle Heizungsrohre und Heizkörper wurden erneuert.
– Das Erdgeschoss ist teilweise mit Fußbodenheizung ausgestattet und barrierefrei. Es wurde der Anschluss für einen wasserführenden Kamin vorbereitet.
– Die Gasheizung aus dem Jahr 02/2024 wird durch Solar für die Brauchwasseraufbereitung ergänzt.
– Fast alles neue Fenster, Kunststoff 2-fach verglast.
– Fast alle Eingangstüren neu in Kunststoff.
– Im Außenbereich der Fassade zur Straße wurde eine Horizontal-Feuchtigkeitssperre eingebaut. An der Fassade wurde der Außenputz erneuert.
– Die Fassade bekam 2024 einen heuen Anstrich.
– Giebel und Rückseite des Hauses wurden gedämmt.
– Die oberste Geschossdecke wurde gedämmt.
Es liegt Glasfaser.
Als Bodenbelag wurden Fliesen und Laminat gewählt. Die Bäder und Küchen sind hochwertig ausgestattet, wie auf den Fotos ersichtlich ist.
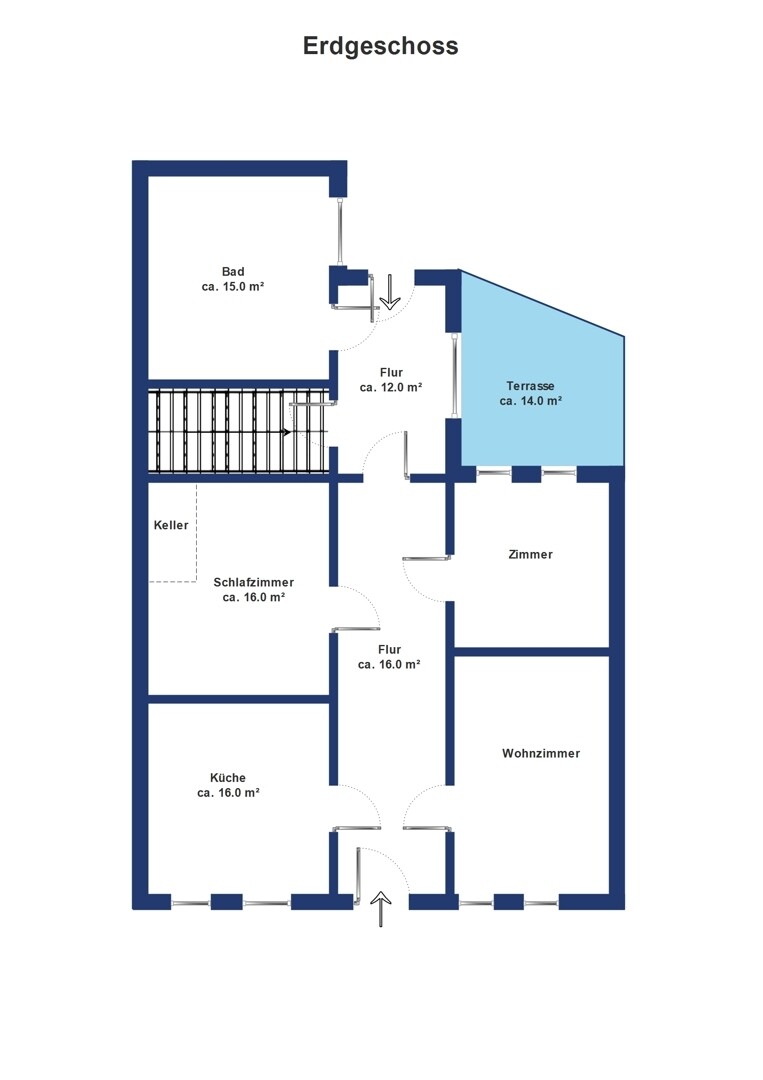
ERDGESCHOSSWOHNUNG mit 114 m² Wohnfläche und 29 m² Nutzfläche, Zugang von der Straße.
Großer Wohnungsflur, 3 Zimmer, große Wohnküche mit Einbauküche, Tageslicht-Vollbad mit Wanne und Bodenablaufdusche, Fußbodenheizung, barrierefrei. Loggia zum Innenhof, Zugang zur Wohnung auch vom Innenhof, Zugang zum kleinen Teilkeller in der Wohnung, externer Abstellraum im Nebengebäude.
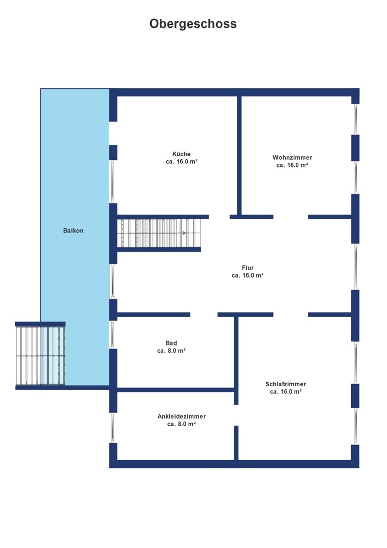
WOHNUNG OBERGESCHOSS UND DACHGESCHOSS mit 85 m² und 39 m² Wohnfläche und 13 m² Nfl, Zugang über eine Treppe vom Innenhof über den großen Balkon mit 17,50 m².
Großer Wohnungsflur, 3 Zimmer im OG, Große Küche mit Einbauküche, Tageslicht-Vollbad mit Wanne und Dusche, Zentralheizung,
Dachgeschoss mit Wohnungsflur, 3 Zimmer und Duschbad.
Die Raumaufteilung entnehmen Sie bitte den anhängenden Grundrissen.
Die letzte Sanierung / Modernisierung war 2025.
– Die gesamte Elektrik wurde erneuert.
– Alle Wasserleitungen wurden erneuert.
– Alle Heizungsrohre und Heizkörper wurden erneuert.
– Das Erdgeschoss ist teilweise mit Fußbodenheizung ausgestattet und barrierefrei. Es wurde der Anschluss für einen wasserführenden Kamin vorbereitet.
– Die Gasheizung aus dem Jahr 02/2024 wird durch Solar für die Brauchwasseraufbereitung ergänzt.
– Fast alles neue Fenster, Kunststoff 2-fach verglast.
– Fast alle Eingangstüren neu in Kunststoff.
– Im Außenbereich der Fassade zur Straße wurde eine Horizontal-Feuchtigkeitssperre eingebaut. An der Fassade wurde der Außenputz erneuert.
– Die Fassade bekam 2024 einen heuen Anstrich.
– Giebel und Rückseite des Hauses wurden gedämmt.
– Die oberste Geschossdecke wurde gedämmt.
Es liegt Glasfaser.
Als Bodenbelag wurden Fliesen und Laminat gewählt. Die Bäder und Küchen sind hochwertig ausgestattet, wie auf den Fotos ersichtlich ist.
ERDGESCHOSSWOHNUNG mit 114 m² Wohnfläche und 29 m² Nutzfläche, Zugang von der Straße.
Großer Wohnungsflur, 3 Zimmer, große Wohnküche mit Einbauküche, Tageslicht-Vollbad mit Wanne und Bodenablaufdusche, Fußbodenheizung, barrierefrei. Loggia zum Innenhof, Zugang zur Wohnung auch vom Innenhof, Zugang zum kleinen Teilkeller in der Wohnung, externer Abstellraum im Nebengebäude.
WOHNUNG OBERGESCHOSS UND DACHGESCHOSS mit 85 m² und 39 m² Wohnfläche und 13 m² Nfl, Zugang über eine Treppe vom Innenhof über den großen Balkon mit 17,50 m².
Großer Wohnungsflur, 3 Zimmer im OG, Große Küche mit Einbauküche, Tageslicht-Vollbad mit Wanne und Dusche, Zentralheizung,
Dachgeschoss mit Wohnungsflur, 3 Zimmer und Duschbad.
Die Raumaufteilung entnehmen Sie bitte den anhängenden Grundrissen.
Mehr anzeigen zum Thema Lage
Lage
Stadt Rehna – Willkommen in der Klosterstadt.
Rehna ist eine Landstadt mit ca. 3600 Einwohnern im Landkreis Nordwestmecklenburg in Mecklenburg-Vorpommern. Sie ist Verwaltungssitz des gleichnamigen Amtes, dem neben Rehna zehn weitere Gemeinden angehören. Der Ort ist ein Grundzentrum.
Die Stadt bietet alle Einkaufsmöglichkeiten, Kitas, Grundschulen, Ärzte und Apotheken.
Diese Immobilie liegt nur wenige Gehminuten von der Innenstadt entfernt. Bus- und Bahnanbindung sind vorhanden. Die A20 ist ca. 8 km entfernt. Mit dem Auto sind die Ostsee, Lübeck, Schwerin und Ratzeburg schnell zu erreichen.
Rehna ist eine Landstadt mit ca. 3600 Einwohnern im Landkreis Nordwestmecklenburg in Mecklenburg-Vorpommern. Sie ist Verwaltungssitz des gleichnamigen Amtes, dem neben Rehna zehn weitere Gemeinden angehören. Der Ort ist ein Grundzentrum.
Die Stadt bietet alle Einkaufsmöglichkeiten, Kitas, Grundschulen, Ärzte und Apotheken.
Diese Immobilie liegt nur wenige Gehminuten von der Innenstadt entfernt. Bus- und Bahnanbindung sind vorhanden. Die A20 ist ca. 8 km entfernt. Mit dem Auto sind die Ostsee, Lübeck, Schwerin und Ratzeburg schnell zu erreichen.
Mehr anzeigen zum Thema Sonstige Angaben
Sonstige Angaben
Selbst wohnen und eine Wohnung vermieten? Oder als Kapitalanlage? Dieses Haus mit 2 getrennten Wohnungen bietet viele Möglichkeiten:
Jung und Alt, große Familie, selbst wohnen und vermieten oder Kleingewerbe usw.
Das Grundstück ist eingefriedet und von der Straße her durch ein per Fernbedienung gesteuertes Rolltor gesichert.
Das Haus hat einen Glasfaseranschluss.
Beide Wohnungen sind vermietet.
EG-Wohnung seit 01.01.2023.
OG-Wohnung seit 01.11.2025.
Bei Eigenbedarf besteht eine Kündigungsfrist von 3 Monaten.
Netto-Kaltmiete Erdgeschoss 600,00 €
Netto-Kaltmiete Obergeschoss und Dachgeschoss 950,00 €
Die Beheizung- und Brauchwasseraufbereitung erfolgen über eine Gas-Zentralheizung mit Solarunterstützung aus 02/2024.
Der Energieausweis liegt vor: Energieverbrauch 122,1 kWh(m²*a) und wird bei der Besichtigung ausgehändigt.
Die Stellplätze sind auf dem gesicherten Grundstück. Ebenso ein Gartenteil.
Ein Anbau dient dem Erdgeschoss als Abstellraum. Der Eigentümer hat hier ebenfalls noch einen Raum zum Abstellen von Geräte und ein Gartenhaus, welches er als Werkstatt nutzt.
Letzte Modernisierung 2025. Übergang nach Vereinbarung.
Bitte haben Sie Verständnis dafür, dass wir nur bei Angabe Ihrer vollständigen Adresse mit Telefonnummer die Adressdaten der Immobilie per Mail übermitteln. Dies geschieht in Absprache mit den Verkäufern unserer angebotenen Immobilien und unterstreicht gleichzeitig die Ernsthaftigkeit Ihrer Anfrage. Mit Ihrer Anfrage erteilen Sie uns die Einwilligung, telefonisch oder per E-Mail kontaktiert zu werden.
Die Maklerprovision ist verdient und fällig mit Beurkundung des notariellen Kaufvertrages. Der Makler hat eine Provision in gleicher Höhe mit dem Verkäufer vertraglich vereinbart.
Jung und Alt, große Familie, selbst wohnen und vermieten oder Kleingewerbe usw.
Das Grundstück ist eingefriedet und von der Straße her durch ein per Fernbedienung gesteuertes Rolltor gesichert.
Das Haus hat einen Glasfaseranschluss.
Beide Wohnungen sind vermietet.
EG-Wohnung seit 01.01.2023.
OG-Wohnung seit 01.11.2025.
Bei Eigenbedarf besteht eine Kündigungsfrist von 3 Monaten.
Netto-Kaltmiete Erdgeschoss 600,00 €
Netto-Kaltmiete Obergeschoss und Dachgeschoss 950,00 €
Die Beheizung- und Brauchwasseraufbereitung erfolgen über eine Gas-Zentralheizung mit Solarunterstützung aus 02/2024.
Der Energieausweis liegt vor: Energieverbrauch 122,1 kWh(m²*a) und wird bei der Besichtigung ausgehändigt.
Die Stellplätze sind auf dem gesicherten Grundstück. Ebenso ein Gartenteil.
Ein Anbau dient dem Erdgeschoss als Abstellraum. Der Eigentümer hat hier ebenfalls noch einen Raum zum Abstellen von Geräte und ein Gartenhaus, welches er als Werkstatt nutzt.
Letzte Modernisierung 2025. Übergang nach Vereinbarung.
Bitte haben Sie Verständnis dafür, dass wir nur bei Angabe Ihrer vollständigen Adresse mit Telefonnummer die Adressdaten der Immobilie per Mail übermitteln. Dies geschieht in Absprache mit den Verkäufern unserer angebotenen Immobilien und unterstreicht gleichzeitig die Ernsthaftigkeit Ihrer Anfrage. Mit Ihrer Anfrage erteilen Sie uns die Einwilligung, telefonisch oder per E-Mail kontaktiert zu werden.
Die Maklerprovision ist verdient und fällig mit Beurkundung des notariellen Kaufvertrages. Der Makler hat eine Provision in gleicher Höhe mit dem Verkäufer vertraglich vereinbart.
Mehr anzeigen zum Thema Sonstige Angaben
Energieausweis
A+
< 30
A
30 – 50
B
50 – 75
C
75 – 100
D
100 – 130
E
130 – 160
F
160 – 200
G
200 – 250
H
> 250
- Nutzungsart
- Wohnen
- Baujahr lt. Energieausweis
- 1900
- Endenergieverbrauch
- 122,1 kWh/(m²a)
- Energieausweis
- Verbrauchsausweis
- Energieausweis gültig bis
- 13.08.2035
- Energieeffizienzklasse
- D
- wesentlicher Energieträger
- Gas